4.9

on Google

Back

Lot 21

Sites 22 & 24 Brookvale Street
Belfast, BT14 6BZ

Key Features

  • ATTENTION BUILDERS / DEVELOPERS
  • RESIDENTIAL DEVELOPMENT OPPORTUNITY
  • TWO BUILDING SITES
  • FULL PLANNING PERMISSION
  • TWO x 2.5 STOREY SEMI DETACHED
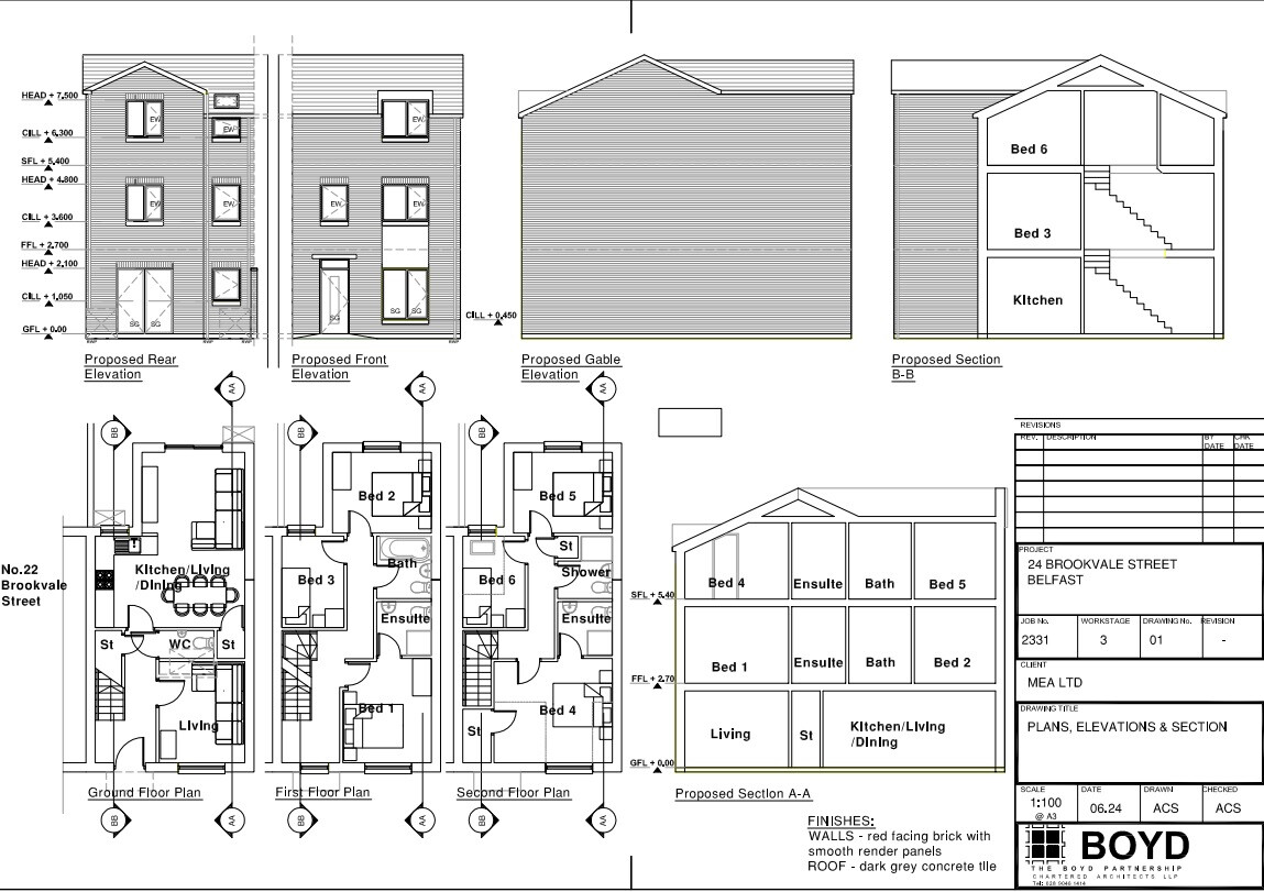
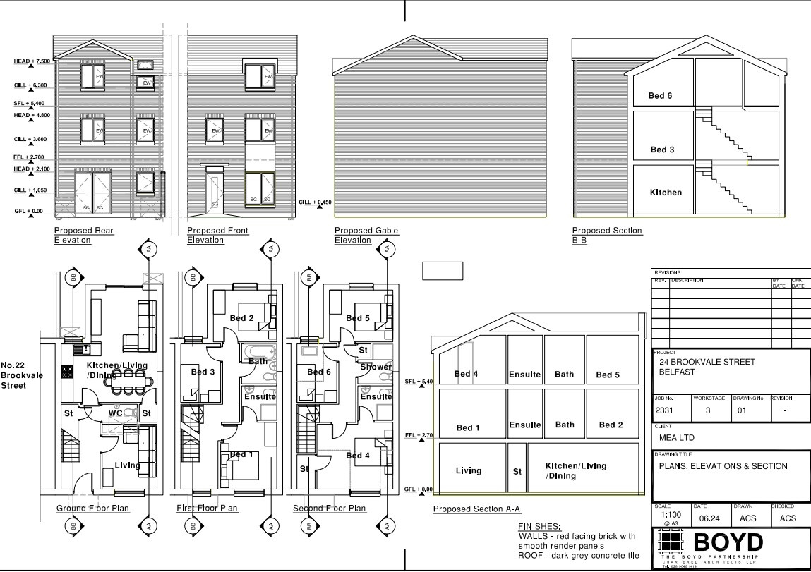
  • NO. 22 PLANNING REF: LA04/2016/0350/F
  • NO. 24 PLANNING REF: LA04/2024/1337/F
  • FOUNDATIONS IN PLACE FOR NO. 22
  • JUST OFF THE POPULAR ANTRIM ROAD
  • CLOSE TO ALL LOCAL AMENITIES
  • 10 MINUTE DRIVE TO BELFAST CITY CENTRE

Description

We are delighted to present this exceptional development opportunity to auction. The sites benefit from full planning permission for two high-specification, spacious, semi-detached homes, providing an attractive proposition for developers or investors.

No. 22 already has foundations in place, maintaining the planning indefinitely, while No. 24 has recently received approval. Each property is designed over 2.5 storeys, ideal for modern family living in this popular North Belfast location.

Brookvale Street is positioned just off the vibrant Antrim Road, renowned for its mix of local shops, cafes, and amenities. Excellent transport links, including regular bus routes and easy access to the M2, make the site highly accessible to Belfast City Centre, approximately a 10-minute drive away. Nearby properties in the area have consistently performed well in both sales and lettings, demonstrating strong rental and new build sale potential, making this an appealing acquisition for investors also.

The site has been keenly priced to achieve a prompt sale, and we expect significant interest. Interested parties are advised to register their interest early to avoid missing out.

Location

Gogogone Limited has endeavoured to prepare these sales particulars as accurately and reliably as possible. The particulars are given for your general guidance only and do not form any part of an offer or contract. The seller and agents do not give any warranty in relation to the property. All services, fittings and equipment referred to in the sales details have not been tested by Gogogone Limited and no warranty is given to their condition. We strongly advise prospective buyers to independently commission their own survey and service reports before making offer or bidding on the property.  The measurements within the details are approximate and have not been verified.

Guide Price

£68,000

DAYS

HOURS

MINUTES

SECONDS

Live Bidding

Registration will open on Wed 8th Apr 10:00AM

Legal Documents

You Must Login To View Legal Pack - Login

Book Your Viewing

You Must Login To Book Your Viewing - Login

Send Enquiry

Sales Negotiator

Make an Offer

You Must Login To Make An Offer - Login